Inspiration til dit byggeri
Hvordan kunne et hus på Vang 75 se ud? Vi har fået udarbejdet en række visuelle renderinger og eksempler på husplaner, der viser grundens potentiale. Materialet er tænkt som inspiration - ikke som færdige arkitekttegninger. Hverken konstruktion, materialevalg eller placering er endeligt fastlagt, og alle illustrationer bør betragtes som vejledende.
Renderingerne herunder giver et realistisk indtryk af, hvordan et nybyggeri kan indpasses i det kuperede terræn med vestvendt udsigt over Østersøen. Billederne viser et tænkt scenarie - ikke et konkret byggeprojekt - og er udelukkende ment som afsæt for dialog med din egen arkitekt eller rådgiver.




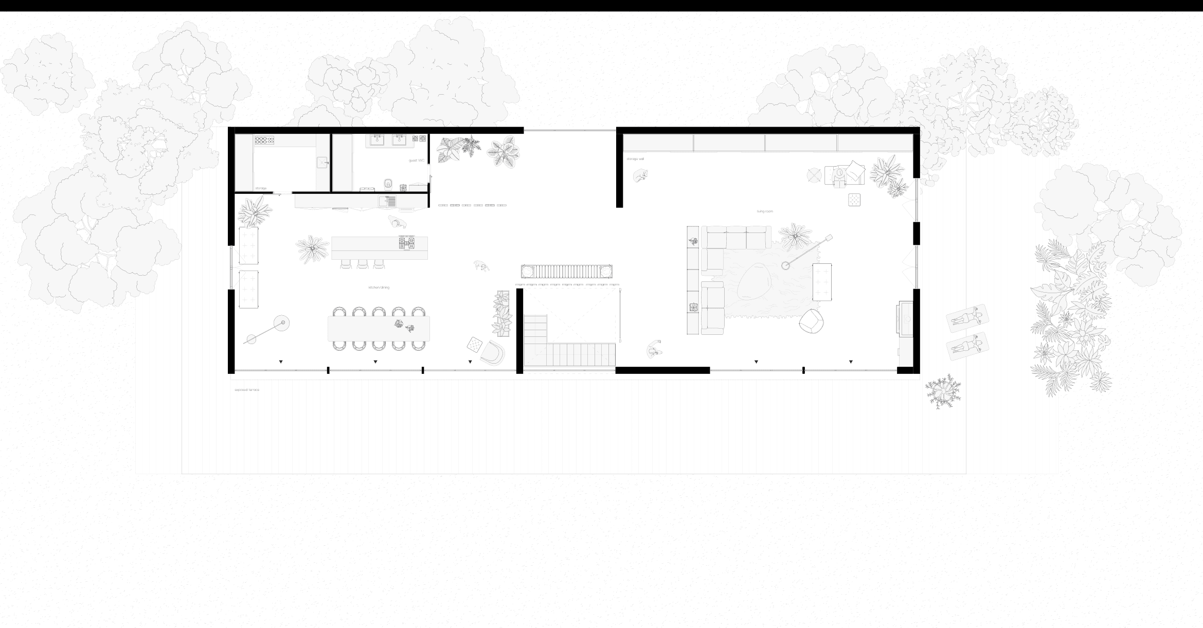
Eksempler på husplaner
Herunder ses eksempler på mulige plantegninger, der illustrerer hvordan grundens form, størrelse og byggemuligheder kan udnyttes. Planerne er udarbejdet som inspiration og er ikke statisk godkendte. De bør tilpasses i samarbejde med en rådgivende arkitekt under hensyntagen til lokalplanens bestemmelser for delområde B, herunder en bebyggelsesprocent på op til 40 % og en maksimal bygningshøjde på 8,5 meter.


